Appartamento 4 letto in VENDITA a Forlì P.zzale della Vittoria

Riferimento: 2476
250.000
210 Mq043Si

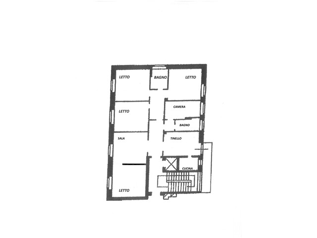
Scopri questo ampio appartamento di 210 m², situato in una vivace zona universitaria, perfetto sia come residenza esclusiva che come investimento. Con 6 camere di diverse dimensioni, tra cui matrimoniali, doppie e singole, questo immobile offre spazio in abbondanza per famiglie o gruppi di studenti. I tre bagni garantiscono comodità e funzionalità, mentre il soggiorno luminoso e la cucina abitabile creano un ambiente accogliente per momenti di convivialità.
L'ingresso spazioso e c'è un generoso balcone, ideale per godere di momenti di relax all'aria aperta. Inoltre, il garage di proprietà nel condominio adiacente aggiunge un ulteriore valore a questa proposta. Situato al secondo piano con ascensore, l'appartamento è ben orientato (Nord, Sud, Est) e dotato di aria condizionata per il massimo comfort.
Non perdere l'occasione di personalizzare questo immobile da ristrutturare secondo il tuo gusto. Con un consumo energetico di 82,60 kWh/m² all'anno e una classe energetica E, questo appartamento rappresenta un'ottima opportunità per chi cerca spazio e potenziale in una delle zone più dinamiche della città. Contattaci per maggiori informazioni e per organizzare una visita!

Contatti

Agenzia forlicasa
0543 32027
 
RECENSIONI

Si fidano di noi

LAgenzia immobiliare a conduzione familiare che da sempre offre servizi competenti e professionali. Ho trovato titolari trasparenti, affidabili e molto disponibili. Sono stata seguita passo a passo nelle mie pratiche, ottenendo una consulenza personalizzata, puntuale e coerente alle varie richieste manifestate.

★★★★★
Silvia Cappelli la BCC Ravennate

Collaboro da molti anni con Forlì Casa Immobiliare, ogni collaborazione con Forlì Casa è stata caratterizzata da un alto livello di professionalità. Non solo hanno sempre garantito un supporto efficace nelle transazioni immobiliari, ma si sono anche distinti per la competenza tecnica e l'attenzione alle esigenze specifiche del cliente, offrendo soluzioni personalizzate e puntuali.

★★★★★
Pasquale Montanino Geometra

Ho scelto FORLICASA IMMOBILIARE come agenzia di riferimento da consigliare i miei clienti dopo anni di conoscenza diretta in cui ho potuto constatare la loro profonda conoscenza del territorio in cui lavorano, l’estrema attenzione che dedicano ai clienti soddisfacendo velocemente le loro esigenze e la notevole preparazione commerciale e tecnica.

★★★★★
Marco Nicolucci Architetto

ForliCasa - Agenzia Immobiliare a Forlì

Fondata nel 1994, Forlì Casa Immobiliare è una delle agenzie immobiliari storiche di Forlì, gestita con serietà, competenza e passione direttamente dai soci fondatori, Franco, Luca ed Elisa.
Specializzata nella vendita di appartamenti, case, ville, villette, uffici e terreni, Forlì Casa Immobiliare investe tempo e risorse economiche in un numero limitato di opportunità immobiliari offrendo così il massimo della visibilità e del valore ai vostri immobili e tutto il tempo necessario alla ottimizzazione della vostra vendita. Forlì Casa vi garantisce contatti con acquirenti e investitori affidabili e motivati.
Se state cercando un'opportunità d'acquisto, la nostra agenzia propone una selezione curata di proprietà immobiliari a Forlì e dintorni, valutate non solo in base al loro potenziale commerciale ma anche con competenza tecnica e ideali per le vostre esigenze abitative o d'investimento.

Seguici su