Casa indipendente in VENDITA a Forlì Ronco

Riferimento: 2506
395.000
260 Mq000Si

**Casa Indipendente in Vendita zona Ronco: Un'Oasi di Comfort e Spazio**
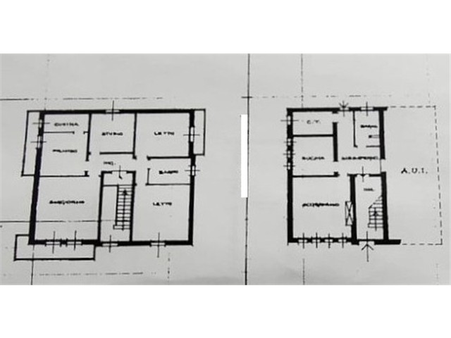
Scopri questa splendida casa indipendente situata nel tranquillo quartiere residenziale del Ronco, ottimamente servito e collegato al centro cittadino. Con una superficie di circa 260 mq, l'immobile si sviluppa su due piani, offrendo ampi spazi e una disposizione razionale. Al piano terra, un grande ingresso conduce a un luminoso soggiorno, una cucina funzionale con caminetto, un bagno finestrato, uno studio e un ripostiglio, oltre a un garage spazioso.
Il primo piano è composto da un disimpegno che si apre sul vano scala e che conduce a un soggiorno luminoso con terrazzo, una sala da pranzo con cucina, tre camere da letto e un secondo bagno. Due balconi completano il piano, offrendo spazi esterni con affaccio sul giardino privato. La casa è in buono stato e subito abitabile, con la possibilità di essere divisa in due unità immobiliari una più piccola al piano terra e più ampia al primo piano, perfetta per famiglie anche numerose.
Il giardino privato di circa 450 mq è un angolo di relax, mentre la possibilità di posto auto rende questa proposta ancora più interessante. L'accesso è adattato per persone con mobilità ridotta, rendendo l'immobile adatto a tutti. Con un impianto di riscaldamento con caldaia a condensazione nuova, questa casa rappresenta una fantastica opportunità per chi cerca spazio e comfort in una posizione strategica. Non perdere l'occasione di visitarla!

Contatti

Agenzia forlicasa
0543 32027
 
RECENSIONI

Si fidano di noi

LAgenzia immobiliare a conduzione familiare che da sempre offre servizi competenti e professionali. Ho trovato titolari trasparenti, affidabili e molto disponibili. Sono stata seguita passo a passo nelle mie pratiche, ottenendo una consulenza personalizzata, puntuale e coerente alle varie richieste manifestate.

★★★★★
Silvia Cappelli la BCC Ravennate

Collaboro da molti anni con Forlì Casa Immobiliare, ogni collaborazione con Forlì Casa è stata caratterizzata da un alto livello di professionalità. Non solo hanno sempre garantito un supporto efficace nelle transazioni immobiliari, ma si sono anche distinti per la competenza tecnica e l'attenzione alle esigenze specifiche del cliente, offrendo soluzioni personalizzate e puntuali.

★★★★★
Pasquale Montanino Geometra

Ho scelto FORLICASA IMMOBILIARE come agenzia di riferimento da consigliare i miei clienti dopo anni di conoscenza diretta in cui ho potuto constatare la loro profonda conoscenza del territorio in cui lavorano, l’estrema attenzione che dedicano ai clienti soddisfacendo velocemente le loro esigenze e la notevole preparazione commerciale e tecnica.

★★★★★
Marco Nicolucci Architetto

ForliCasa - Agenzia Immobiliare a Forlì

Fondata nel 1994, Forlì Casa Immobiliare è una delle agenzie immobiliari storiche di Forlì, gestita con serietà, competenza e passione direttamente dai soci fondatori, Franco, Luca ed Elisa.
Specializzata nella vendita di appartamenti, case, ville, villette, uffici e terreni, Forlì Casa Immobiliare investe tempo e risorse economiche in un numero limitato di opportunità immobiliari offrendo così il massimo della visibilità e del valore ai vostri immobili e tutto il tempo necessario alla ottimizzazione della vostra vendita. Forlì Casa vi garantisce contatti con acquirenti e investitori affidabili e motivati.
Se state cercando un'opportunità d'acquisto, la nostra agenzia propone una selezione curata di proprietà immobiliari a Forlì e dintorni, valutate non solo in base al loro potenziale commerciale ma anche con competenza tecnica e ideali per le vostre esigenze abitative o d'investimento.

Seguici su